TEREN POD BUDOWNICTWO 
MIESZKANIOWE  

 

 

 

OPIS NIERUCHOMOŚCI

PPRZEZNACZENIE

LOKALIZACJA

PREZENTACJA ZDJĘĆ

SZCZEGÓŁY

Nieruchomość niezabudowaną przy ul. Olimpijskiej

Działki:

Nr 426/2 o pow.: 0,1273 ha

 

 

Teren przeznaczony pod budowę mieszkaniową jednorodzinną

 

 

Oferta

sprzedaży

 

GALERIA W PDF

 

PREZENTACJA POWER POINT

 

bip.boguszów-gorce.pl

 

Nieruchomości niezabudowane

położone przy

ul. Wałbrzyskiej

 

 

Teren przeznaczony pod budowę mieszkaniową jednorodzinną

 

Oferta

sprzedaży

 

 

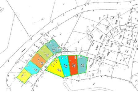
 MAPA PODZIAŁU DZIAŁEK

 

 

MAPA ZASADNICZA ZAPROJEKTOWANEJ SIECI UZBROJENIA

 

 

 

 

 

bip.boguszów-gorce.pl

Nieruchomości niezabudowane położone przy ul. Świerczewskiego

Działka nr 103/13, pow.: 0,1296 ha.

Teren przeznaczony pod budowę mieszkaniową wielorodzinną

 

 

 

Kompletowanie dokumentacji

Nieruchomości niezabudowane położone przy

ul. M. Nowotki

Działka nr 767/6, pow.: 0,0952 ha.

Teren przeznaczony pod budowę mieszkaniową jednorodzinną

 

 

 

MAPA

EWIDENYCJNA

Kompletowanie dokumentacji